Green Lake Backyard Cottage

Architect: Jim Burton Architects
Contractor: Fradkin Fine Construction
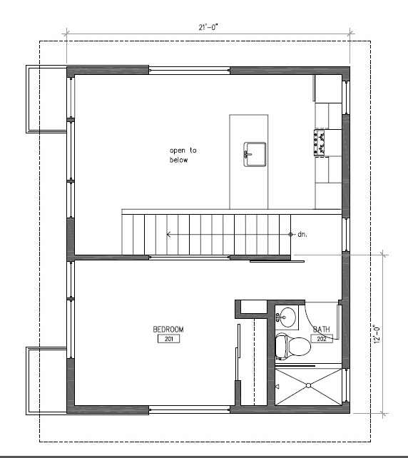
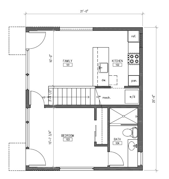
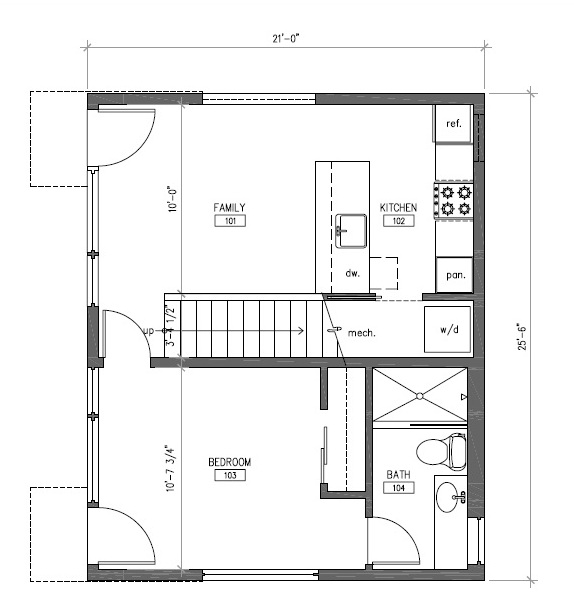
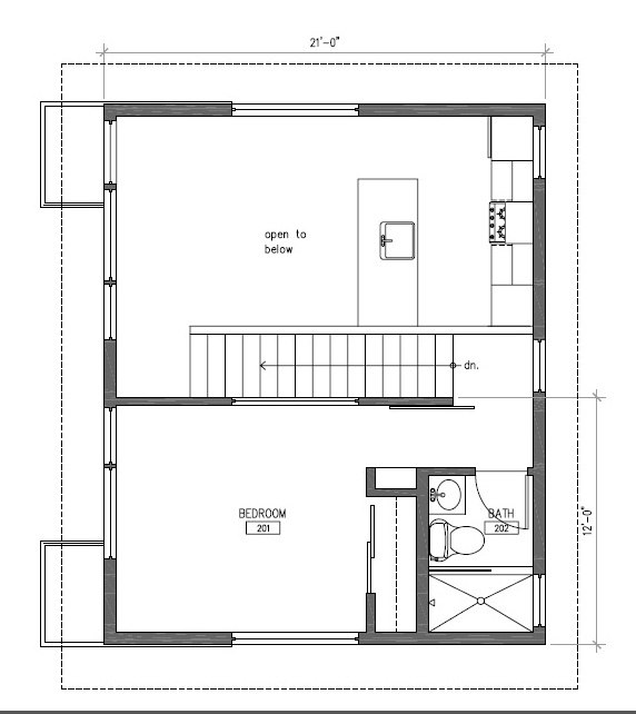
Square Footage: 795 SF
Construction Hard Costs: $375/SF
Construction Completed: 2012
This is a story-and-a-half, 2-bedroom, 2 bath backyard cottage in the Green Lake neighborhood. The homeowners wanted a detached dwelling unit that in the short term would provide a place for the in-laws to stay for extended visits. In the long term it will act as a residence for the in-laws when they relocate here from Hawaii. The ground floor bedroom can be accessed separately from the DADU, to serve as a guest bedroom for the main residence.

