Eastlake DADU

Architect: Bruce Parker/microhouse
Contractor: Hansmire Builders
Square Footage: 800 SF
Construction Hard Costs: $350,000
Construction Completed: 2018
As Colette and Chris noticed houses in their neighborhood being replaced by rows of apartment buildings, they considered ways to preserve their own home and family history. That meant improving and maintaining the original house, and also creating a DADU to provide an income stream.
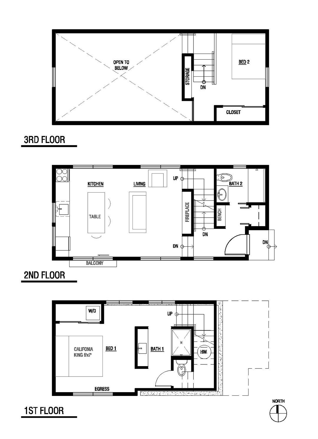
The site is very small and steeply sloping with the large family home and parking to maintain. As it true of most DADUs, along with great challenges come opportunities. The slope and alley access gave us the opportunity to achieve a split level home with a large master suite, an open floor plan with vaulted ceilings, a balcony off of the kitchen, 2 bathrooms, and a 2nd lofted bedroom.

